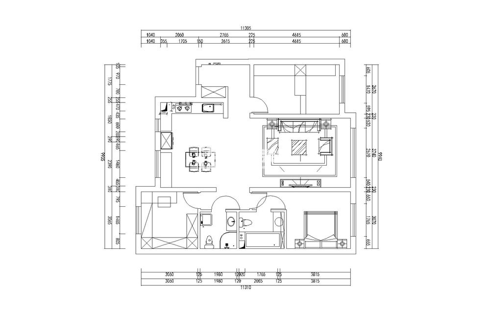
鲁商凤凰城92平现代轻奢效果图
更新时间:2021-01-29 10:57:40
空间结构的规划与功能相匹配,以变换的材质,色彩和造型,让空间成就生活的舒适和质感,纯净的白,雅致的墨蓝,为它打上清新的底色,闪耀的金色,柔和的灯光,让它变得灵动而温馨。








下一篇:香湾青城67平港式风格效果图
在线咨询
免费获取装修方案
*我们承诺一下信息绝对保密请放心填写
哈尔滨装修公司 - 大树装饰 - 真爱家人 就选大树© Copyright 2015-2022 哈尔滨大树装饰工程设计有限公司 版权所有 网站地图 黑ICP备17003252号-1
1845
你家预算
108080元
免费电话报价
18945101277
×